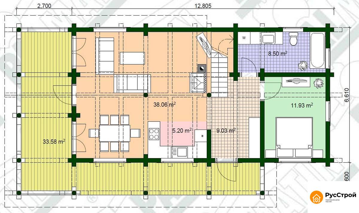
Двухэтажный дом из бревна с тремя спальнями SD-270
Похожие проекты
Стоимость строительных работ
На конечную стоимость строительных работ влияет комплекс факторов, включающий
- Архитектурные и конструктивные особенности проекта;
- Инженерно-геологические условия на площадке;
- Качество и номенклатура применяемых материалов;
- Технологическая сложность выполнения монтажных и общестроительных работ.
Реализованные проекты
Множество довольных клиентов уже построили свой дом мечты
Одноэтажный дом на ленточном фундаменте
Дом из СИП-панелей в СНТ
Современный одноэтажный дом
Традиционный английский коттедж из кирпича
Типовой дом из газобетона Практик
Современный коттедж из газобетона с облицовкой
Как мы работаем
Простой и прозрачный алгоритм работы нашей компании в Сургуте
Перед тем, как начать процесс, мы должны подготовить все необходимые документы для органов государственной власти, провести геодезические работы на участке, выбрать проект дома, рассчитать смету и заключить договор.
Первый этап предоставляет возможность ознакомиться с преимуществами сотрудничества с нами без каких-либо обязательств.
Согласование всех вопросов и нюансов перед началом работ
- Выбор проекта дома, количества и высоты этажей
- Выбор материалов для строительства дома
- Расчет сметы
Если у вас нет проекта дома, мы подберем его по вашим потребностям и желаниям или разработаем индивидуальный проект.
В любой типовой проект можно внести изменения по вашему желанию.
Детали проекта дома
- Планировка и размещение помещений.
- Экстерьер и фасад.
- Инженерные системы.
- Безопасность и энергоэффективность.
- 3D визуализация будущего дома.
Фундамент - надежная основа дома. Этапы работ при заливке фундамента
Все работы производятся с соблюдением строительных норм и правил, чтобы обеспечить долговечность и безопасность здания
Какие работы производятся
- Подготовка площадки
- 23+ лет
- 5 лет
- Устройство опалубки
- Установка арматуры
- Подготовка бетонной смеси
- Заливка бетонной смеси
- Уход за бетоном
Возведение коробки дома важный этап строительства, при котором необходимо соблюсти строительные нормы и технические нюансы проектной документации.
От выбранного материала для строительства коробки дома зависят сроки строительства.
Материалы строительства стен могут быть разными:
- 23+ лет
- 10+ лет
- Блоки (керамзитоблок, газоблок, керамический блок, пеноблок, арболит и тд)
- Кирпич
- Сип-панели
- Брус (профилированный, клееный)
- Бревно (оцилиндрованное, ручной рубки)
Возведение кровли дом - установка крыши
Срок установки зависят от сложности проекта и выбранного материала кровли.
Этапы работ по монтажу кровли:
- Строительство стропильной системы в зависимости от выбранного варианта крыши (плоская, ломанная, скатная, вальмовая и тд)
- Установка изоляционного слоя кровли.
- Укладка кровельного материала (металлочерепица, вальмовая, профнастил, мягкая кровля и тд).
Внешние отделочные работы - финальный этап строительства загородного дома
Двери, окна и фасад определяются заказчиком заранее и уже заложены в смете
Что входит в работы:
- Установка окон
- Установка дверей
- Фасадные работы
Ипотека до
Почему стоит заказать строительство у нас
Мы знаем, как превратить проект любой сложности в готовый результат. Все работы выполняем строго по законодательным нормам, используем современные технологии и только лучшие строительные материалы. С нами ваш дом в Сургуте будет надежным, красивым и долговечным!
Честная и фиксированная цена.
Мы гарантируем прозрачность и стабильность стоимости наших услуг.
Надежность конструктивных решений
Мы используем проверенные и надежные конструктивные решения, обеспечивающие долговечность и безопасность вашего дома.
Сдача в срок
Мы ценим ваше время и обязуемся сдавать все проекты строго в оговоренные сроки.
Помогаем сэкономить
Наши эффективные строительные методы и грамотное планирование помогают снизить общие затраты на строительство.
Человеческое отношение
У нас вы найдете дружелюбное и понимающее отношение, а все ваши пожелания будут учтены
Квалифицированные кадры
Наша команда состоит из высококвалифицированных специалистов с глубокими знаниями и богатым опытом в сфере строительства.
Часто задаваемые вопросы
Мы собрали наиболее частые вопросы которые задают наши клиенты при заказе строительства в Сургуте